LATTIALUUKKU ALUMIINI 800X1720MM MONIOSAINEN VALETTAVA

BVA-MULTI 80X172 , , Tuotemerkki:

Alumiiniluukku, 2- tai 3-osainen. Varustettu tiivisteellä, mutta ei täysin vesi- ja kaasutiivis. Sisä- ja ulkokäyttöön. Kuormituksen kesto 125kN.

Kuvaus

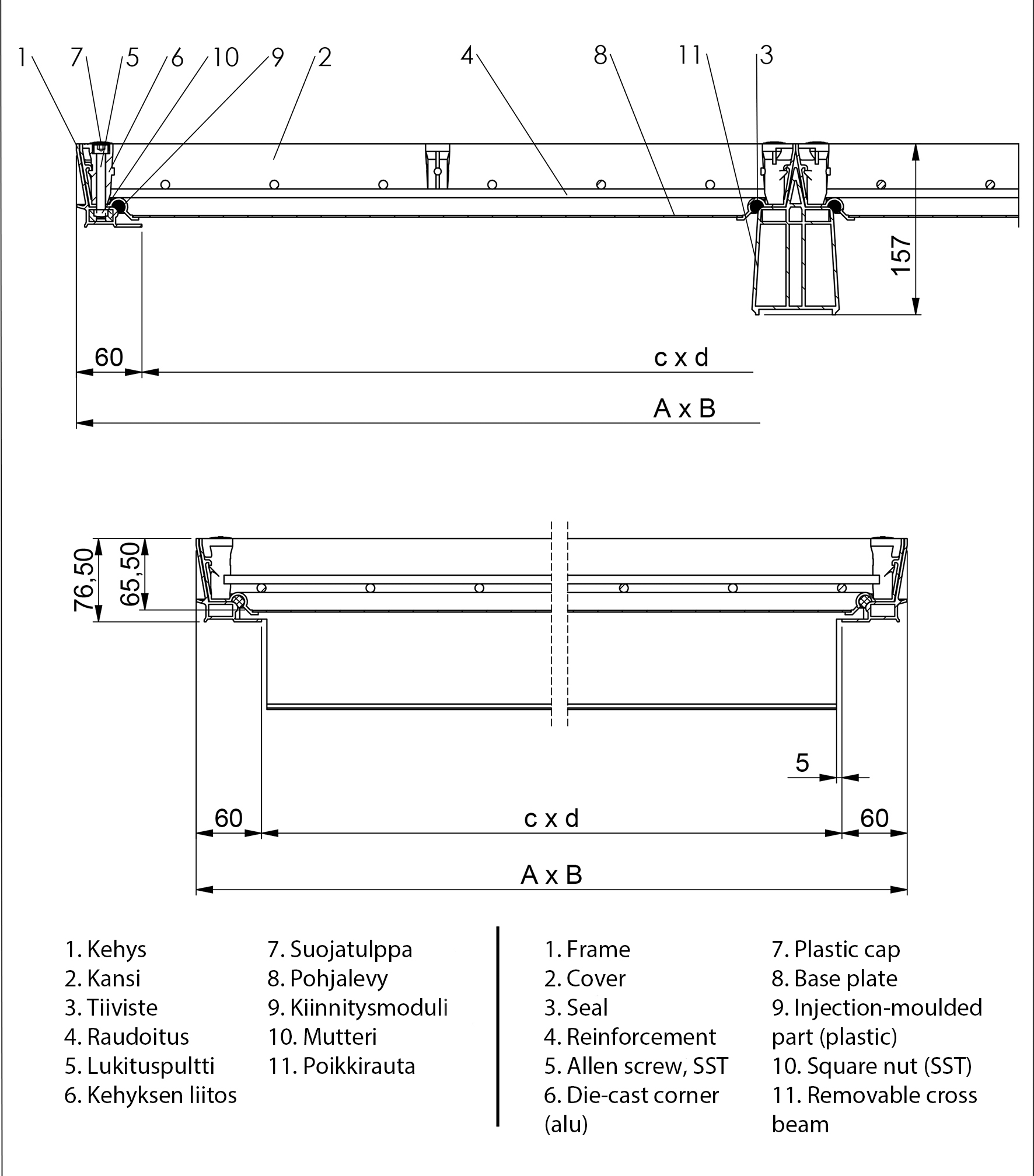
Alumiiniluukku. Kehys ja kansi ovat valmistettu pursotetusta alumiiniprofiilista ,pohja alumiinilevyä. Riviluukku voidaan valmistaa kaksi- tai kolmeosaisena. Mittatarkasti valmistettu Lähes kaasu- ja vesitiivis lattialuukku (jatkuvan vesirasituksen vaikutuksesta,kannen ja kehyksen välistä saattaa esiintyä tihkumista). Kartiomainen muotoilu ja nostoavain helpottavat luukun avaamista. Pienten kulmien ja mittatarkan reunarakenteen ansiosta luukku on paikalleen asennettuna lattiassa lähes huomaamaton. Patentoitu irrotettava välipuola mahdollistaa luukun avaamisen koko pituudelta. Luukun sisällä on rakenteen kuormituskestävyyttä lisäävä raudoitus. Kaasu- ja vesitiiviyttä vaativiin kulkuaukkoihin sisätiloissa, kun näkyviin jääville luukunreunoille asetetaan korkeat ulkonäkövaatimukset tai kun lattiaa joudutaan hiomaan jälkikäteen (esim. parketilla pinnoitetut lattiat). Kuormituksen kesto 125 kN.

Tiedostot
Lisätiedot
Vesitiivis

Kyllä

Asennuskohde

Lattia

Tuotekohtainen toimitusaika

2-3 viikkoa

Kuormituksen kesto

125 kN

Leveys C x D

800 x 1720 mm

Materiaali

Alumiini

Leveys A x B

920 x 1840 mm

Valmistajan verkkosivu

https://www.hago.at/en/products/details/bva-ra-aluminium.html

Kaasutiivis

Kyllä

Lukitustyyppi

Pultti

Brändi

DuuriPRO

EAN (GTIN) 6417083454523